Request a FREE Valuation

Bolton Road, Bolton, BL4 8DB (Ground floor unit), BL4 8DB

Per Calendar Month, £1,700 (Undefined) PCM, Fees Apply


Summary Details

Hyde Estates present this ground floor double fronted retail unit in Kearsley. Situated on an established parade of shops fronting Bolton Road (A653), a high traffic location with excellent visibility from the main road. The unit measures approx 1317 SQ FT (122.35 SQ M).

Full Details

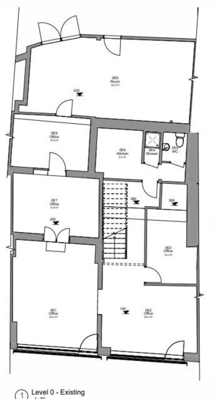
Hyde Estates present this double fronted ground floor retail unit in Kearsley. Situated on an established parade of shops fronting Bolton Road (A653), a high traffic location with excellent visibility from the main road. The unit measures approx 1317 SQ FT (122.35 SQ M). The retail area features plastered walls with suspended ceilings and inset lighting. Theres a separate office together with a kitchen, WC, and shower room. To the rear is a large storage/ workshop with double doors to the rear, ideal for loading. Also features electric roller shutters fitted to the front elevation. The unit would suit a variety of uses that may require a showroom, office and storage.

Location
Situated on an established parade of shops at the junction of Bolton Road (A653), Long Causeway (A5082) and Higher Market Street (A6053). Just a short drive to the A666 and M61 motorway junction 3.

Accommodation
Ground floor approx 1317 SQ FT (122.35 SQ M)

Terms of lease
By negotiation

VAT
We understand the property is not liable for VAT.

Usage
Retail and financial

EPC - C

Business rates
The property is described as “shop and premises” for further information please contact Bolton Council Business Rates Department on 01204 333333.

Legal costs
Each party to bear their own legal costs.

Viewings
Please contact Hyde Estate & Letting Agents 0161-773 4583

Material Information

  • Council Tax Band: E

Arrange a Viewing

* indicates a required field within the form.